Realizátor
statutární město Prostějov
Rozpočet
2 996 605 Kč
Termín
srpen 2026
Financování
rozpočet města
Priority
Společnost a volnočasové aktivity
Popis
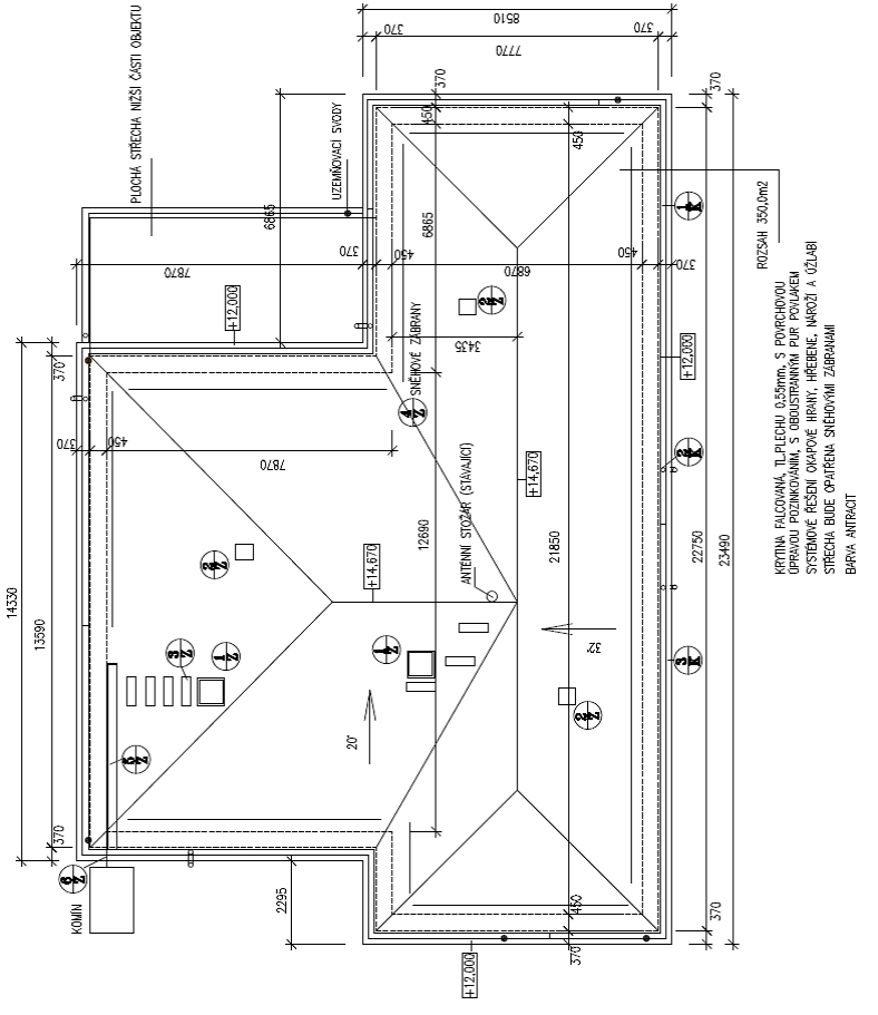
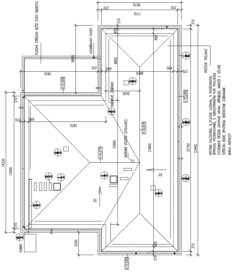
Střecha školské budovy na adrese Majakovského 1 je v havarijním stavu (je posunutá, zohýbaná, zatéká skrz). V této budově se nachází nižší stupeň ZŠ, jedná se o třípodlažní objekt ve tvaru „T” s přístavbami různé výšky a komínem. S vyšším stupněm ZŠ je budova propojena krčkem.
Při rekonstrukci střechy půjde o změnu dokončené stavby, kterou lze charakterizovat jako kompletní výměnu střešní krytiny včetně bednění a ošetření stávajícího krovu v tomto rozsahu:
- Odstranění stávajícího pláště střechy – odstranění plechové a eternitové krytiny včetně dřevěného bednění, klempířských prvků a vikýřů.
- Ošetření stávajícího vázaného dřevěného krovu nátěrem proti dřevokaznému hmyzu, houbám a plísním.
- Provedení nové plechové střešní krytiny na dřevěné bednění tloušťky 25 mm.
- Osazení střešních výlezových oken a střešních světlíků.
- Provedení nových klempířských výrobků.
- Zateplení stropu nad 3.NP volným uložením rohoží skelné vaty na stávající podlahu půdy z cihelné dlažby.
- Instalace hromosvodu.
Projektovou dokumentaci na rekonstrukci vypracovala v roce 2025 Ing. Ivana Hynková z Prostějova.
Celková předpokládaná hodnota veřejné zakázky je dle PD 4 054 943 Kč včetně DPH. V rozpočtu na rok 2026 jsou schválené finanční prostředky ve výši 3 500 000 Kč.
Akce bude financována pouze z vlastních finančních prostředků.
Zahájení prací je předpokládáno v polovině června 2026, provádění rekonstrukce by mělo být hotovo do konce letních prázdnin.
V období leden - únor 2026 je vyhlášeno výběrové řízení na dodavatele rekonstrukce. Vítězným uchazečem se stala společnost PP STŘECHY s.r.o. z Prostějova s částkou 2 996 603 Kč.
Příprava
2025
zpracování PD
Výběrové řízení na dodavatele
leden - únor 2026
Realizace rekonstrukce
červen - srpen 2026