Realizátor
Statutární město Prostějov
Rozpočet
5 674 591 Kč
Termín
září 2024
Financování
rozpočet města
Priority
Společnost a volnočasové aktivity
Popis
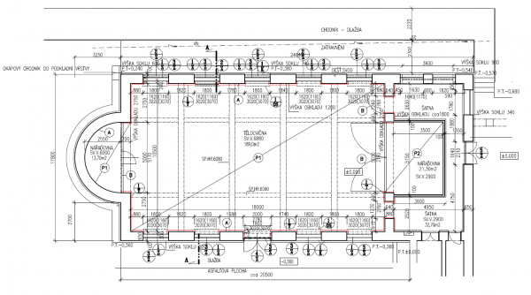
Město Prostějov připravilo opravu tělocvičny na Husově náměstí - výměnu podlahy včetně doplnění hydroizolace. Zároveň byla provedena sanace stěn injektáží a sanace vnitřních povrchů stěn sanačními prostředky. Stěny tělocvičny byly obloženy dřevěnými akustickými obklady a veškeré povrchy vymalovány. Provedena byla kompletní výměna stávajících prosvětlovacích copilitových prvků za nové polykarbonátové panely umístěné do hliníkových profilů. Nahrazeny byly venkovní dveře za dveře z hliníkových profilů se zasklením bezpečnostním sklem. Součástí akce byla i výměna elektroinstalace, nové osvětlení a elektrické ovládání otevírání oken.
Tělocvična byla před opravou uzavřena na základě rozhodnutí Krajské hygienické stanice.
Projektovou dokumentaci na opravu vypracovala Ing. Ivana Hynková z Prostějova v roce 2019. Povolení ze strany stavebního úřadu není potřeba.
Celkové náklady opravy byly dle PD 6 078 875 Kč s DPH. V rozpočtu města byly na rok 2024 vyčleněny finanční prostředky ve výši 3.000.000,-- Kč.
Předpokládaná délka provedení opravy byla 100 dní.
V březnu 2024 bylo vyhlášeno výběrové řízení na dodavatele opravy objektu tělocvičny. Nejvýhodnější nabídku předložila společnost Profil Plus s.r.o. z Dlouhého Mostu s částkou 5 314 616 Kč s DPH.
Na chybějící finanční prostředky bylo předloženo rozpočtové opatření na dubnovou schůzi rady města, která schválila toto opatření.
Oprava byla zahájena 15.05.2024.
Při provádění prací se objevily vícepráce - odstranění škvárového násypu pod dřevěnou podlahou ( s tím se v projektové dokumentaci nepočítalo), odstranění dvojitého dřevěného záklopu původní podlahy (místo jednoduchého) a oprava a výměna zákrytu topenářského kanálu (umístěného podél obvodových stěn tělocvičny, o kterém se nevědělo). Vícenáklady navýší náklady stavby na 5 674 591 Kč. Na chybějící finanční prostředky bylo připraveno rozpočtové opatření, které bylo radou města schváleno na schůzi konané dne 30.7.2024.
Stavba byla dokončena k 30.9.2024.
Příprava - zpracování projektové dokumentace
2019
Výběrové řízení na dodavatele opravy
březen 2024
Vyčlenění chybějících finančních prostředků
duben 2024
rada města rozhodla schválit chybějící finanční prostředky
Realizace opravy
květen -září 2024